京地4丁目新築一戸建

3,480万円

兵庫県神戸市北区京地4丁目

神鉄三田線「田尾寺」駅徒歩24分

神鉄三田線「岡場」駅バス13分神姫バス「京地公園前」停歩6分

福知山線「三田」駅バス26分神姫バス「京地2丁目」停歩10分

価格
3,480万円
間取り
4LDK
土地面積
188.53㎡
所在地
兵庫県神戸市北区京地4丁目
交通

神鉄三田線田尾寺」駅 徒歩24分

神鉄三田線岡場」駅 バス13分 神姫バス「京地公園前」 停歩6分

福知山線三田」駅 バス26分 神姫バス「京地2丁目」 停歩10分

建物面積
98.82㎡
築年月
2026年2月(予定)

現地見学会

日時 2025年6月2日 ~ 2026年2月28日  10:00 ~ 18:00
  • ※事前に必ず予約してください

物件の特徴

  • バストイレ別

  • 室内洗濯機置場

  • TVモニタ付きインターホン

  • 浴室乾燥機

セールスポイント

新着情報:京地4丁目新築一戸建の空室情報ならコチラ。開放感のある間取りの4LDK物件です。家族でくつろぐのに、リビングでもよいですが、和室というのも粋ではないでしょうか。多くの方から高いニーズのある、内装もピカピカの新築戸建ての物件です。当社では、神戸市北区エリアと田尾寺付近の情報を取り扱っております。住まい探しの際には是非お問い合わせ下さい。

ポイント

2面バルコニー フローリング 複層ガラス 省エネルギー対策 間口10m以上

担当者のコメント

栗塚  隆

京地4丁目新築一戸建:田尾寺駅にも近くて便利。顔が見える安心のTVインターホン付きです。爽やかな気持ちで暮らすことができる海まで2km以内にある物件です。価格の面でも、3,480万円と、負担の少ない条件の物件です。住みやすい環境が整った神戸市北区で一戸建てを購入するのであれば、豊富な不動産情報を扱う当社のスタッフまでお問い合わせください。

基本情報

販売戸数
-
総戸数
-
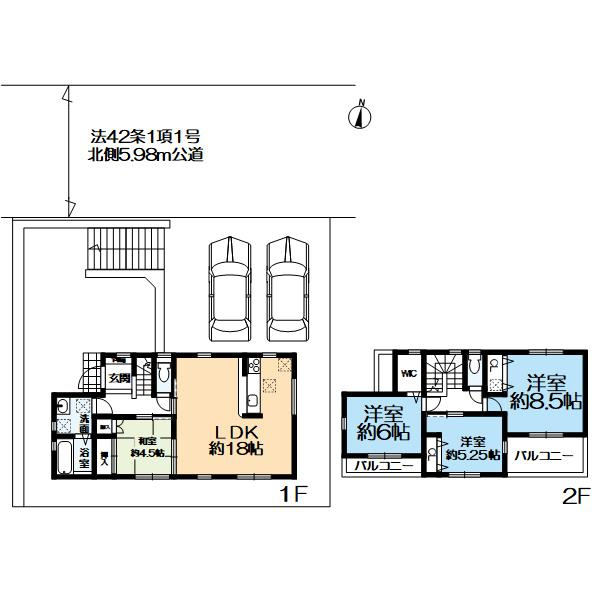
間取り / 詳細
4LDK
LDK 18.0帖 1室/和室 4.5帖 1室/洋室 6.0帖 1室/洋室 5.2帖 1室/洋室 8.5帖 1室
向き
建物面積(坪数)
98.82㎡(29.89坪)
土地面積(坪数)
188.53㎡(57.03坪)
建ぺい率 /
容積率
40%/80%
築年月
2026年2月(予定)
駐車場 /
月額料金
有(2台) 0円
土地権利
所有権
土地
(敷金 / 保証金)
- / -
建物構造
木造 / 2階建
傾斜地部分面積
-
路地状敷地
-
私道負担面積
-
セットバック
高圧線下面積
-
施工会社
ファースト住建(株)
用途地域
第一種低層住居専用
地目 / 地勢
宅地 / 高台
接道状況
一方(北 公道 6.0m 間口 14.5m)
国土法届出要否
不要
都市計画
市街化区域
総区画数 /
販売区画数
-/-
現況
未完成
その他
法令上の制限
景観法/宅地造成及び特定盛土等規制法/建築協定有
取引態様
仲介
引渡し
相談
取引条件の
有効期限
2026年02月27日

設備条件

設備条件
  • 眺望良好 / 現地見学会 / 室内洗濯機置場 / フローリング / 都市ガス / 公営水道 / 公共下水 / 電気有 / 2面バルコニー / 駐車2台可 / ガスコンロ / コンロ2口以上 / システムキッチン / コンロ3口 / バス・トイレ別 / 追焚機能浴室 / 浴室乾燥機 / 洗髪洗面化粧台 / トイレ2ヶ所 / 床下収納 / ウォークインクロゼット / TVモニタ付インターホン / 複層ガラス
設備(その他)
    -

その他

物件番号
95095441
管理コード
-
建築確認番号
第トラスト25-0293号
情報更新日
2026年02月13日
次回更新予定日
2026年02月27日
取扱会社
  • ツナグ不動産株式会社
  • 兵庫県神戸市北区北五葉1丁目5-1 ハピネスプラザ3F
  • TEL:0120-227-279
  • 兵庫県知事 (1) 第12422号
  • 公益社団法人 全国宅地建物取引業保証協会
備考
玄関にリモコンキーがついているのでドアの開閉も快適です。多くの方から高いニーズのある、内装もピカピカの新築戸建ての物件です。ゆったりとしたくつろぎの空間のある、4LDKの物件です。188.53㎡(公簿)の土地面積を有する物件です。当社では神戸市北区の不動産情報をご用意しております。お引っ越しを検討しているのであれば、ぜひお気軽にお問い合わせくださいませ。

支払いシミュレーション

月々の支払額
9.6
購入希望物件価格
万円
頭金
万円
金利
%
返済額(ボーナス1回分)
万円
返済期間

※ボーナスは自動で年2回分で計算されます。

近隣の物件

  1. 神戸市北区大原1丁目戸建

    神戸市北区大原1丁目

    3LDK (115.92㎡)

    3,280万円

  2. 神戸市北区星和台1丁目戸建

    神戸市北区星和台1丁目

    5LDK (138.89㎡)

    2,580万円

  3. 神戸市北区鈴蘭台南町5丁目戸建

    神戸市北区鈴蘭台南町5丁目

    4LDK (85.41㎡)

    400万円

  4. 神戸市北区筑紫が丘3丁目新築戸建

    神戸市北区筑紫が丘3丁目

    4LDK (106.91㎡)

    4,380万円

京地4丁目新築一戸建

京地4丁目新築一戸建

3,480万円

-

4LDK(98.82㎡)

お気軽にお問い合わせください

LINEからお問い合わせ 無料お問い合わせ

ツナグ不動産株式会社

0120-227-279

10:00~19:00

(休:水曜日)